Η σειρά είναι σχεδιασμένη για πελάτες που επιθυμούν ποιότητα χωρίς συμβιβασμούς και υψηλή ενεργειακή απόδοση. Mεγάλα παράθυρα, κομψός σχεδιασμός, υψηλός βαθμός ηχομόνωσης και θερμότητας καθώς και εξαιρετική ασφάλεια - το καινοτόμο παράθυρο TROCAL 88 πληροί όλες τις σημερινές και μελλοντικές απαιτήσεις.
ΠΡΟΦΙΛ
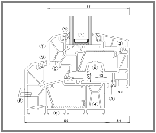
- TROCAL 88 Standard
- Πάχος: 88 mm
- Αριθμός θαλάμων: 7
- Μεντεσέδες : Winkhaus activPilot ή Siegenia
- Υάλωση : Τριπλή ενεργειακή ( Argon)
- Αριθμός επιπέδων στεγανοποιήσεις : 3
- Χρώμα : Πλούσια παλέτα χρωμάτων
- Δυνατότητα επένδυσης ALU: Ναι.
- Εγγύηση: 10 χρόνια
- Πλήρως ανακυκλώσιμο
- Σχεδίαση ευθείας γραμμής σε δύο επίπεδα, με στενές περιοχές προβολής για βέλτιστο φως της ημέρας και υψηλά κέρδη ηλιακής ενέργειας
- Συντελεστής θερμοπερατότητας W / (m²K) : 1,0
- Συντελεστής θερμοπερατότητας Ug W / (m²K) : 0,5
- Συντελεστής θερμοπερατότητας Uw W / (m²K) : 0,8
- Υδατοστεγανότητα έως κατηγορία : 9Α
- Αντίσταση σε ανεμοπίεση κατηγορία : C5/B5
- Αεροδιαπερατότητα , κατηγορία : 4
- Ηχομόνωση έως 47 dB
- Βάθος εγκατάστασης 76mm
- Αντιδιαρρηκτική προστασία κατηγορία : C2
- Ασφαλής μεταφορά του κέντρου βάρους φορτίου από γυαλί σε συγκεκριμένη ενίσχυση από χάλυβα στον κεντρικό κεντρικό θάλαμο.
- Τεχνολογία Greenline
Υαλοπίνακες
Συνηθισμένη θερμομόνωση διπλού Low-
Απαιτούμενη θερμομόνωση ενεργειακής κλάσης Β για τριπλό Low-
Υψηλή θερμομόνωση ενεργειακής κλάσης Α, πλάτος υαλοπίνακα μέχρι 44mm, Ug=0.5 W/qmK (βλ. τον πίνακα EnEv κανονισμών για εξοικονόμηση ενέργειας)
ΠΛΟΥΣΙΑ ΓΚΑΜΑ ΧΡΩΜΑΤΩΝ
ΕΙΔΗ ΤΖΑΜΙΩΝ














